开云官网

 丨     网站无障碍 丨 关怀版 丨  关爱版
开云官网

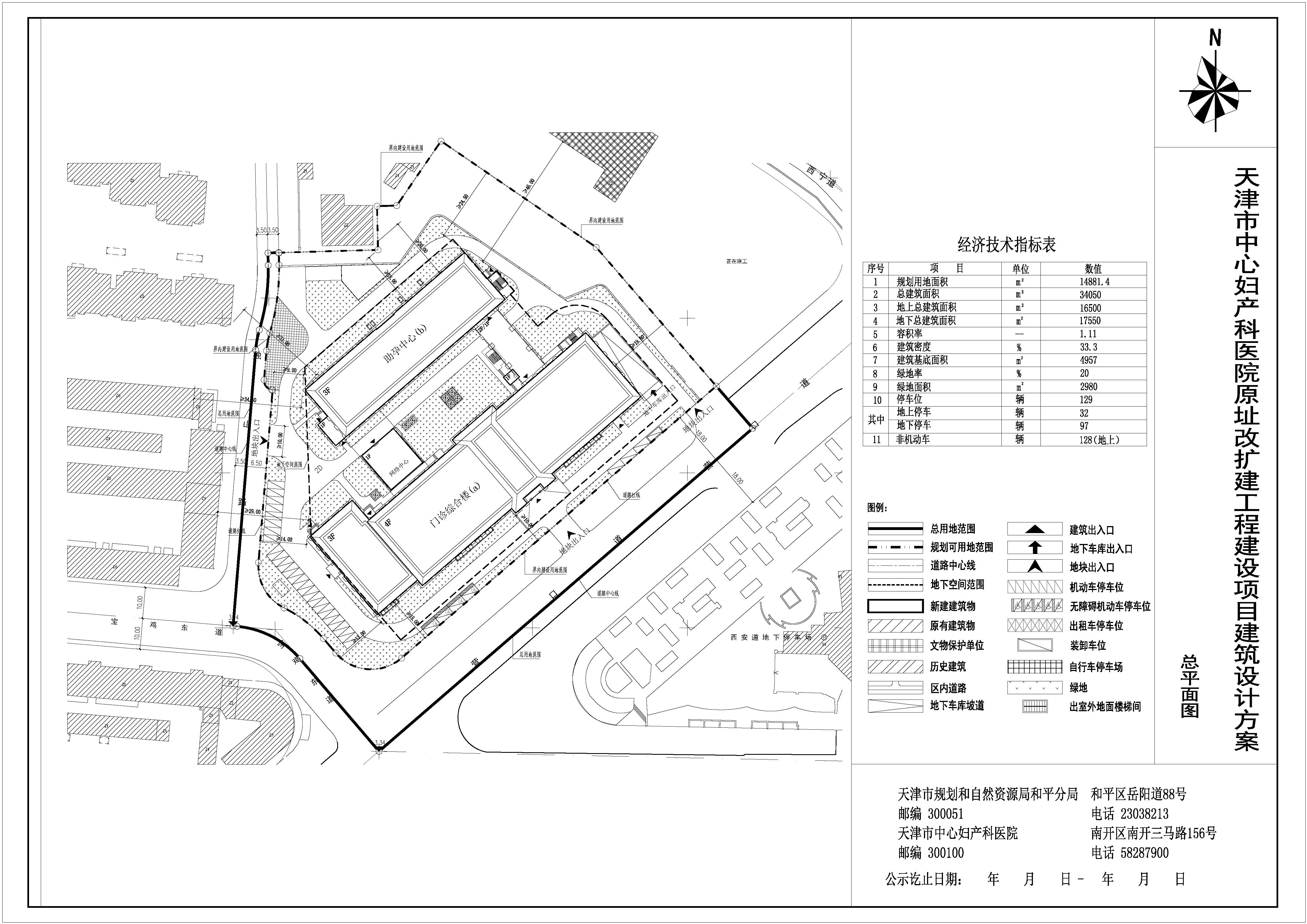
天津市中心妇产科医院原址改扩建工程互联网门户网站信息发布

发布日期:2019-05-07    发布者:市规划资源局和平分局


天津市中心妇产科医院原址改扩建工程互联网门户网站信息发布

   按照《天津市工程建设项目审批制度改革试点实施方案》(津政发[2018]22号)要求,现拟申请天津市中心妇产科医院原址改扩建工程建设工程设计方案总平面网上公示,公示时间为7个工作日。
    开云官网
法律声明 | 关于我们 | 网站地图 | 使用帮助

主办单位:开云官网-开云体育官方网站 版权所有:开云官网-开云体育官方网站

津公网安备12010102000334号   津ICP备05000681号   网站标识码:1201010001

本网站违法和不良信息举报电话:022-23196661,举报邮箱:[email protected]

微博
微信
`