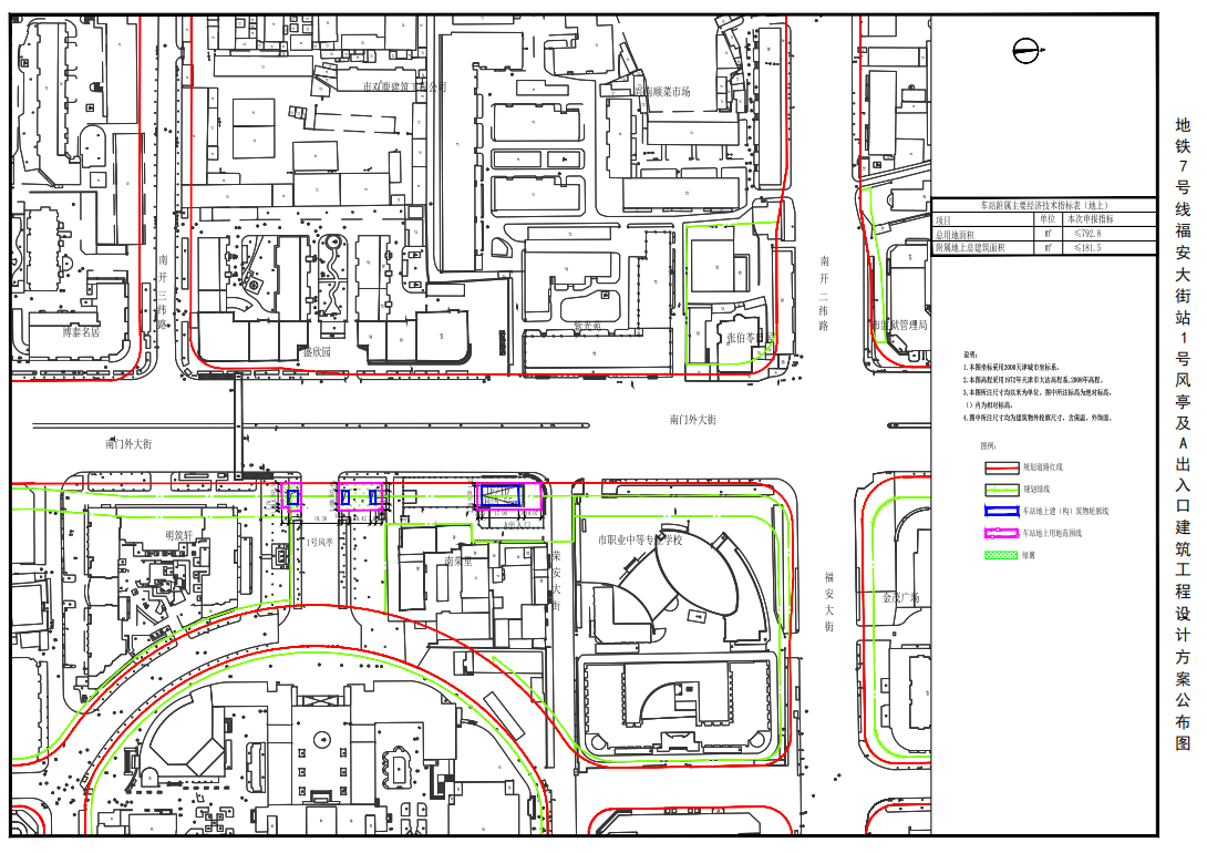
依据《中华人民共和国城乡规划法》相关要求,现将天津地铁7号线一期工程福安大街站1号风亭、A出入口附属建筑地上部分(开云官网 )建筑工程总平面图进行公布,期限为发布之日至规划验收合格。
联系电话:022-23308213
联系地址:开云官网 岳阳道88号市规划资源局和平分局

主办单位:开云官网-开云体育官方网站 版权所有:开云官网-开云体育官方网站
津公网安备12010102000334号 津ICP备05000681号 网站标识码:1201010001
本网站违法和不良信息举报电话:022-23196661,举报邮箱:[email protected]